No Name


















































About
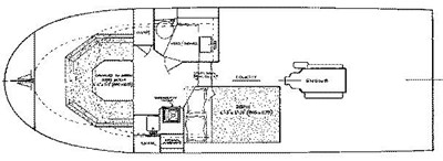
The Albin 28 Tournament Express Flat Deck combines traditional styling with a downeast look in a stout, seaworthy, offshore performance hull.
A keel runs the length of the hull incorporated with a skeg that protects the prop and rudder and increases the boat's tracking and stability.
This vessel delivers award-winning performance and is capable of handling any sea condition. With almost 1,000 hulls produced, the Albin 28 TE has a well-earned reputation for high-quality, outstanding handling characteristics, economical diesel performance with its YANMAR Diesel engine package and (ONLY 90 HOURS AFTER REBUILT). Also included in this package is a TRIPLE AXLE SEA-TECH TRAILER. An overall true value for money.
Basic Information
- Builder: ALBIN
- Category: Cruiser
- Model: 28 Tournament Express
- Model Year: 2006
- YearBuilt: 2006
- Country: United States
Dimensions
- LOA: 28' (8.53m)
- Beam: 10' (3.05m)
Speed / Weight
- Gross Tonnage: 0.00 Pounds
Accomodation
- Captains Quarters: No
Hull & Deck
- Hull ID: AUL28896C606
- Hull Material: Fiberglass
Engine Information
- Engine Count: 2
- Manufacturer: Yanmar
- Model: 6LPA-STP
- Engine Type: Inboard
- Fuel Type: Diesel
No Name
















































